内神田1-6-10
内神田1-6-10
内神田1-6-10
オフィス
物件ID: JPN-P-00110Y

笠原ビル

東京都千代田区内神田1-6-10

坪単価:お問い合せください

  • 募集面積:114.35 坪 / 378 m² 
  • 物件詳細
  • 物件概要
  • 所在地
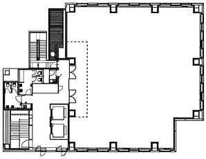
  • 平面図
  • お問い合わせ

物件詳細

笠原ビルは、2008年竣工の東京都千代田区にある賃貸オフィスビルです。地上13階/地下1階建て、基準階面積は141.91坪、天井高は2,700mm、OAフロアあり、耐震構造です。最寄り駅は、東京メトロ丸ノ内線大手町駅から徒歩4分、東京メトロ千代田線大手町駅から徒歩4分、東京メトロ東西線大手町駅から徒歩4分です。

募集区画

所在地

平面図

※基準階とは、多階層ビルにおいて基準となる平面を持つ階になります。

※このページに含まれる情報は、一般的な情報提供のみを目的としています。特に空室状況については現況が異なる場合があるため、詳細についてはお問い合わせ下さい。