神田錦町2-5-1
神田錦町2-5-1
神田錦町2-5-1
オフィス
物件ID: JPN-P-0008Z0
掲載終了物件

神田坂田ビル

東京都千代田区神田錦町2-5-1

坪単価:お問い合せください

  • 物件詳細
  • 物件概要
  • 所在地
  • 平面図

物件詳細

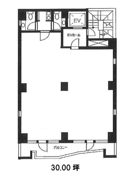
神田坂田ビルは、1985年竣工の東京都千代田区にある賃貸オフィスビルです。地上8階建て、基準階面積は30.00坪、天井高は2,400mm、耐震構造です。最寄り駅は、東京メトロ千代田線新御茶ノ水駅から徒歩5分、都営新宿線小川町駅から徒歩5分、東京メトロ丸ノ内線大手町駅から徒歩6分です。

所在地

平面図

※基準階とは、多階層ビルにおいて基準となる平面を持つ階になります。

※このページに含まれる情報は、一般的な情報提供のみを目的としています。特に空室状況については現況が異なる場合があるため、詳細についてはお問い合わせ下さい。