内神田2-5-6
内神田2-5-6
内神田2-5-6
内神田2-5-6
オフィス
物件ID: JPN-P-000SQZ
掲載終了物件

亀田ビル

東京都千代田区内神田2-5-6

坪単価:お問い合せください

  • 物件詳細
  • 物件概要
  • 所在地
  • 平面図

物件詳細

亀田ビルは、1974年竣工の東京都千代田区にある賃貸オフィスビルです。地上9階/地下1階建て、基準階面積は62.00坪、天井高は2,530mm、OAフロアありです。最寄り駅は、東京メトロ丸ノ内線大手町駅から徒歩5分、JR京浜東北線神田駅から徒歩6分、JR山手線神田駅から徒歩6分です。

所在地

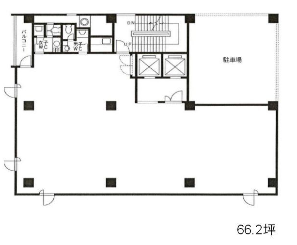
平面図

※基準階とは、多階層ビルにおいて基準となる平面を持つ階になります。

※このページに含まれる情報は、一般的な情報提供のみを目的としています。特に空室状況については現況が異なる場合があるため、詳細についてはお問い合わせ下さい。