元浅草1-4-3
元浅草1-4-3
元浅草1-4-3
元浅草1-4-3
オフィス
物件ID: JPN-P-00133D
即入居可

貝原ビル

東京都台東区元浅草1-4-3

13,223 円/坪から

  • 募集面積:22 坪 / 73 m² 
  • 物件詳細
  • 物件概要
  • 所在地
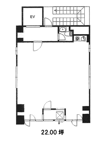
  • 平面図

物件詳細

貝原ビルは、1980年竣工の東京都台東区にある賃貸オフィスビルです。地上8階建て、基準階面積は22.00坪です。最寄り駅は、JR京浜東北線上野駅から徒歩5分、JR山手線上野駅から徒歩5分、JR上越新幹線上野駅から徒歩5分です。

募集区画

所在地

平面図

※基準階とは、多階層ビルにおいて基準となる平面を持つ階になります。

※このページに含まれる情報は、一般的な情報提供のみを目的としています。特に空室状況については現況が異なる場合があるため、詳細についてはお問い合わせ下さい。