道玄坂2-11-1
道玄坂2-11-1
道玄坂2-11-1
オフィス
物件ID: JPN-P-000607
居抜

JMFビル渋谷03

東京都渋谷区道玄坂2-11-1

坪単価:お問い合せください

  • 募集面積:150.45 - 159.86 坪 / 497 - 528 m² 
  • 物件詳細
  • 物件概要
  • 所在地
  • 平面図
  • お問い合わせ

物件詳細

JMFビル渋谷03は、2009年竣工の東京都渋谷区にある賃貸オフィスビルです。地上9階/地下2階建て、基準階面積は160.18坪、天井高は2,700mm、OAフロアあり、耐震構造です。最寄り駅は、京王井の頭線神泉駅から徒歩4分、JR埼京線渋谷駅から徒歩5分、JR山手線渋谷駅から徒歩5分です。

募集区画

所在地

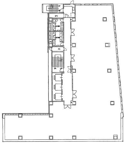
平面図

※基準階とは、多階層ビルにおいて基準となる平面を持つ階になります。

※このページに含まれる情報は、一般的な情報提供のみを目的としています。特に空室状況については現況が異なる場合があるため、詳細についてはお問い合わせ下さい。