
倉庫
物件ID: JPN-P-00BK3ZIC5km以内
JM38C
大阪府東大阪市
坪単価:お問い合せください
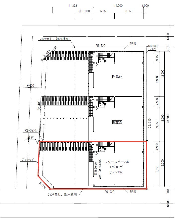
- 募集面積:52.93 坪 / 175 m²
- 物件詳細
- 物件概要
- 所在地
- 平面図
※このページに含まれる情報は、一般的な情報提供のみを目的としています。特に空室状況については現況が異なる場合があるため、詳細についてはお問い合わせ下さい。
※賃貸条件や建物設備は変更する可能性があるため、ご契約内容の詳細についてはお問い合わせ下さい。

大阪府東大阪市
坪単価:お問い合せください
※このページに含まれる情報は、一般的な情報提供のみを目的としています。特に空室状況については現況が異なる場合があるため、詳細についてはお問い合わせ下さい。
※賃貸条件や建物設備は変更する可能性があるため、ご契約内容の詳細についてはお問い合わせ下さい。