神宮前6-10-9
神宮前6-10-9
神宮前6-10-9
神宮前6-10-9
神宮前6-10-9
オフィス
物件ID: JPN-P-0006WO

神宮前董友ビルI

東京都渋谷区神宮前6-10-9

坪単価:お問い合せください

  • 募集面積:54.44 坪 / 180 m² 
  • 物件詳細
  • 物件概要
  • 所在地
  • 平面図
  • お問い合わせ

物件詳細

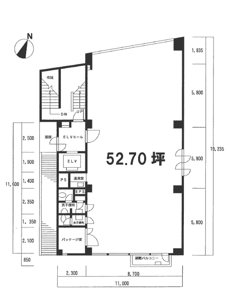
神宮前董友ビルIは、1986年竣工の東京都渋谷区にある賃貸オフィスビルです。地上8階/地下1階建て、基準階面積は52.70坪、天井高は2,450mm、耐震構造です。最寄り駅は、東京メトロ千代田線明治神宮前駅から徒歩3分、東京メトロ副都心線明治神宮前駅から徒歩3分、JR山手線原宿駅から徒歩8分です。

募集区画

所在地

平面図

※基準階とは、多階層ビルにおいて基準となる平面を持つ階になります。

※このページに含まれる情報は、一般的な情報提供のみを目的としています。特に空室状況については現況が異なる場合があるため、詳細についてはお問い合わせ下さい。