神田紺屋町20
神田紺屋町20
神田紺屋町20
神田紺屋町20
オフィス
物件ID: JPN-P-0010L3
掲載終了物件

神保ビル

東京都千代田区神田紺屋町20

坪単価:お問い合せください

  • 物件詳細
  • 物件概要
  • 所在地
  • 平面図

物件詳細

神保ビルは、1973年竣工の東京都千代田区にある賃貸オフィスビルです。地上7階/地下1階建て、基準階面積は48.38坪、天井高は2,450mmです。最寄り駅は、JR京浜東北線神田駅から徒歩2分、JR山手線神田駅から徒歩2分、JR中央本線(東京-塩尻)神田駅から徒歩2分です。

所在地

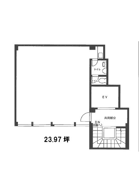
平面図

※基準階とは、多階層ビルにおいて基準となる平面を持つ階になります。

※このページに含まれる情報は、一般的な情報提供のみを目的としています。特に空室状況については現況が異なる場合があるため、詳細についてはお問い合わせ下さい。