
オフィス
物件ID: JPN-P-000W5U岩崎ビル
東京都台東区浅草橋1-7-2
14,000 円/坪から
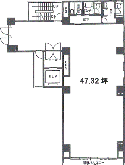
- 募集面積:47.32 坪 / 156 m²
- 物件詳細
- 物件概要
- 所在地
- 平面図
- お問い合わせ
※基準階とは、多階層ビルにおいて基準となる平面を持つ階になります。
※このページに含まれる情報は、一般的な情報提供のみを目的としています。特に空室状況については現況が異なる場合があるため、詳細についてはお問い合わせ下さい。

東京都台東区浅草橋1-7-2
14,000 円/坪から
※基準階とは、多階層ビルにおいて基準となる平面を持つ階になります。
※このページに含まれる情報は、一般的な情報提供のみを目的としています。特に空室状況については現況が異なる場合があるため、詳細についてはお問い合わせ下さい。