清水町36-1
清水町36-1
清水町36-1
清水町36-1
オフィス
物件ID: JPN-P-000YRJ

板橋本町ビル

東京都板橋区清水町36-1

14,000 円 - 18,000 円/坪から

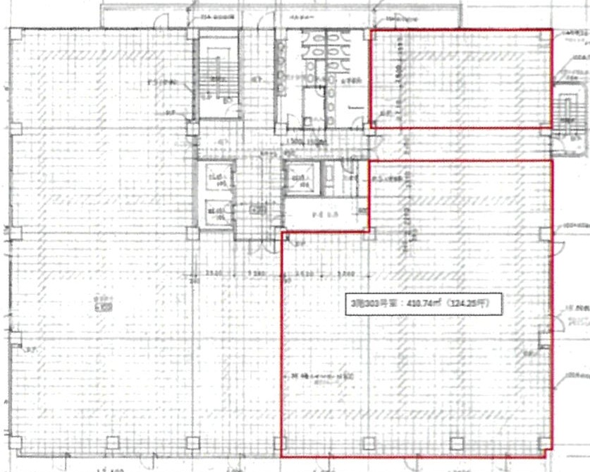
  • 募集面積:90.68 - 124.25 坪 / 300 - 411 m² 
  • 物件詳細
  • 物件概要
  • 所在地
  • 平面図

物件詳細

板橋本町ビルは、1993年竣工の東京都板橋区にある賃貸オフィスビルです。地上8階建て、基準階面積は263.58坪、天井高は2,600mm、耐震構造です。最寄り駅は、都営三田線板橋本町駅から徒歩2分、都営三田線本蓮沼駅から徒歩9分、都営三田線板橋区役所前駅から徒歩17分です。

募集区画

所在地

平面図

※基準階とは、多階層ビルにおいて基準となる平面を持つ階になります。

※このページに含まれる情報は、一般的な情報提供のみを目的としています。特に空室状況については現況が異なる場合があるため、詳細についてはお問い合わせ下さい。