本郷4-37-18
本郷4-37-18
本郷4-37-18
本郷4-37-18
オフィス
物件ID: JPN-P-000M2M

いろは本郷ビル

東京都文京区本郷4-37-18

13,497 円/坪から

  • 募集面積:71.56 坪 / 237 m² 
  • 物件詳細
  • 物件概要
  • 所在地
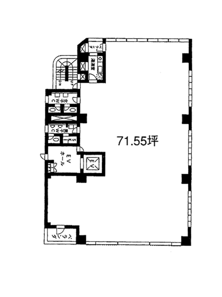
  • 平面図

物件詳細

いろは本郷ビルは、1986年竣工の東京都文京区にある賃貸オフィスビルです。地上7階/地下1階建て、基準階面積は71.55坪、天井高は2,440mmです。最寄り駅は、都営大江戸線(環状部)春日駅から徒歩5分、都営三田線春日駅から徒歩5分、東京メトロ丸ノ内線後楽園駅から徒歩9分です。

募集区画

所在地

平面図

※基準階とは、多階層ビルにおいて基準となる平面を持つ階になります。

※このページに含まれる情報は、一般的な情報提供のみを目的としています。特に空室状況については現況が異なる場合があるため、詳細についてはお問い合わせ下さい。