印西市高花物流センター
476.12 - 2,204.93 坪
/
1,574 - 7,289 m²
坪単価:お問い合せください
JP
お電話
お問合せ
オフィス・事務所
倉庫・物流センター
地図検索
記事
仲介会社様はこちらへ
お気に入り
JP
お電話
お問合せ
倉庫
物件ID:
JPN-P-0037I9
即入居可
4 写真
7 図面
印西市高花物流センター
千葉県印西市
坪単価:お問い合せください
募集面積:
476.12 - 2,204.93 坪
/
1,574 - 7,289 m²
お問い合わせ
お電話
共有する
物件詳細
物件概要
所在地
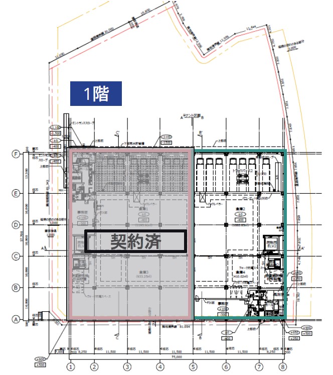
平面図
物件詳細
印西市高花物流センターは、2024年竣工の千葉県印西市にある、物流施設、貸し倉庫等の賃貸物流物件です。地上4階建て、延床面積は5,236.25坪(17,309.92㎡)、構造はS造、耐震構造、用途地域は準工業地域です。最寄り駅は、京成成田空港線・北総鉄道線千葉ニュータウン中央駅から徒歩25分です。最寄りICは、東関東自動車道(高谷-潮来)千葉北ICから約15.5km、京葉道路武石ICから約20.9kmです。
募集区画
所在地
平面図
倉庫
千葉県
印西市
印西市高花物流センター