大崎1-20-8
大崎1-20-8
オフィス
物件ID: JPN-P-00080U

INOビル大崎

東京都品川区大崎1-20-8

15,000 円/坪から

  • 募集面積:21.78 - 32.39 坪 / 72 - 107 m² 
  • 物件詳細
  • 物件概要
  • 所在地
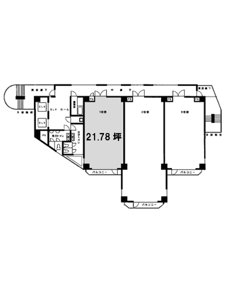
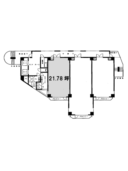
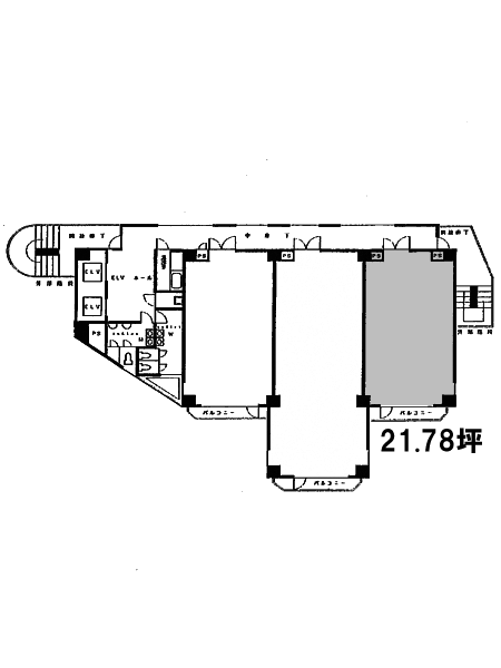
  • 平面図

物件詳細

INOビル大崎は、1986年竣工の東京都品川区にある賃貸オフィスビルです。地上8階建て、基準階面積は63.29坪、天井高は2,400mm、耐震構造です。最寄り駅は、JR埼京線大崎駅から徒歩3分、JR山手線大崎駅から徒歩3分、JR湘南新宿ライン大崎駅から徒歩3分です。

募集区画

所在地

平面図

※基準階とは、多階層ビルにおいて基準となる平面を持つ階になります。

※このページに含まれる情報は、一般的な情報提供のみを目的としています。特に空室状況については現況が異なる場合があるため、詳細についてはお問い合わせ下さい。