倉庫
物件ID: JPN-P-003YRMIC5km以内
即入居可
アイミッションズパーク福岡多の津
福岡県福岡市東区
坪単価:お問い合せください
- 募集面積:789.28 - 3,904.18 坪 / 2,609 - 12,906 m²
- 物件詳細
- 物件概要
- 所在地
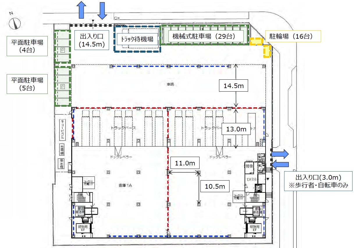
- 平面図
物件詳細
アイミッションズパーク福岡多の津は、2025年竣工の福岡県福岡市東区にある、物流施設、貸し倉庫等の賃貸物流物件です。地上4階建て、延床面積は4,414.08坪(14,592㎡)、天井高5,500mm、床荷重1,500kg、耐震構造、用途地域は準工業地域です。最寄り駅は、JR香椎線(香椎-宇美)土井駅から徒歩23分、JR篠栗線〔福北ゆたか線〕柚須駅から徒歩25分、JR香椎線(香椎-宇美)伊賀駅から徒歩29分です。最寄りICは、福岡高速4号粕屋線多の津出入口から約1.2km、福岡高速4号粕屋線松島出入口から約1.4km、福岡高速4号粕屋線粕屋出入口から約4.5kmです。










