五番町5-5
五番町5-5
オフィス
物件ID: JPN-P-00094W

JS五番町ビル

東京都千代田区五番町5-5

坪単価:お問い合せください

  • 募集面積:71.24 坪 / 236 m² 
  • 物件詳細
  • 物件概要
  • 所在地
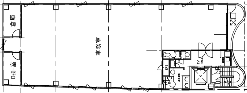
  • 平面図

物件詳細

JS五番町ビルは、2000年竣工の東京都千代田区にある賃貸オフィスビルです。地上8階建て、基準階面積は71.24坪、天井高は2,500mm、OAフロアあり、耐震構造です。最寄り駅は、JR中央本線(東京-塩尻)市ヶ谷駅から徒歩6分、東京メトロ南北線市ヶ谷駅から徒歩6分、東京メトロ有楽町線市ヶ谷駅から徒歩6分です。

募集区画

所在地

平面図

※基準階とは、多階層ビルにおいて基準となる平面を持つ階になります。

※このページに含まれる情報は、一般的な情報提供のみを目的としています。特に空室状況については現況が異なる場合があるため、詳細についてはお問い合わせ下さい。