
オフィス
物件ID: JPN-P-00BK0M新築・竣工予定
(仮)本川越駅前新築工事
埼玉県川越市中原町2-25-2(地番)
坪単価:お問い合せください
- 募集面積:31.13 - 62.25 坪 / 103 - 206 m²
- 物件詳細
- 物件概要
- 所在地
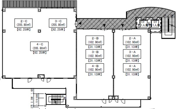
- 平面図
※基準階とは、多階層ビルにおいて基準となる平面を持つ階になります。
※このページに含まれる情報は、一般的な情報提供のみを目的としています。特に空室状況については現況が異なる場合があるため、詳細についてはお問い合わせ下さい。

埼玉県川越市中原町2-25-2(地番)
坪単価:お問い合せください
※基準階とは、多階層ビルにおいて基準となる平面を持つ階になります。
※このページに含まれる情報は、一般的な情報提供のみを目的としています。特に空室状況については現況が異なる場合があるため、詳細についてはお問い合わせ下さい。