オフィス
物件ID: JPN-P-001NTTKAMIHACHI X(カミハチクロス)
広島県広島市中区基町13他(未定)
坪単価:お問い合せください
- 募集面積:36.8 - 529.76 坪 / 122 - 1,751 m²
- 物件詳細
- 物件概要
- 所在地
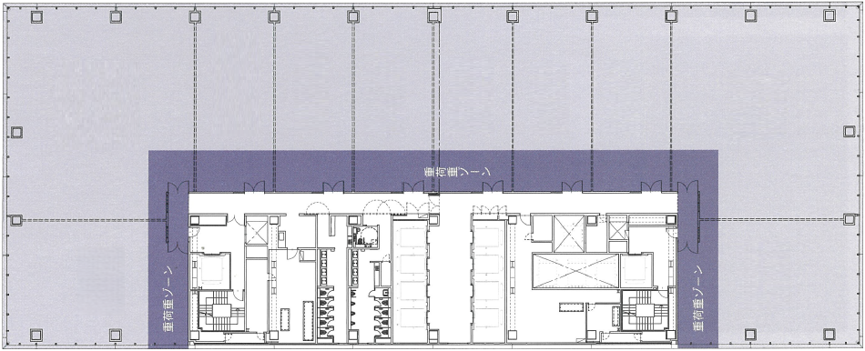
- 平面図
- お問い合わせ
※基準階とは、多階層ビルにおいて基準となる平面を持つ階になります。
※このページに含まれる情報は、一般的な情報提供のみを目的としています。特に空室状況については現況が異なる場合があるため、詳細についてはお問い合わせ下さい。



