北新宿1-13-19
北新宿1-13-19
オフィス
物件ID: JPN-P-000788

弘林ビル

東京都新宿区北新宿1-13-19

14,000 円/坪から

  • 募集面積:48.95 坪 / 162 m² 
  • 物件詳細
  • 物件概要
  • 所在地
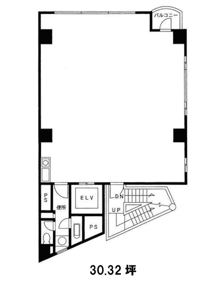
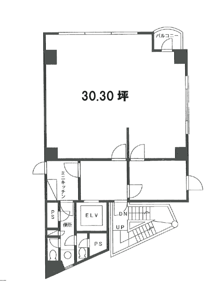
  • 平面図

物件詳細

弘林ビルは、1990年竣工の東京都新宿区にある賃貸オフィスビルです。地上7階/地下1階建て、基準階面積は26.99坪です。最寄り駅は、JR中央本線(東京-塩尻)大久保駅から徒歩4分、JR山手線新大久保駅から徒歩8分、JR中央本線(東京-塩尻)東中野駅から徒歩12分です。

募集区画

所在地

平面図

※基準階とは、多階層ビルにおいて基準となる平面を持つ階になります。

※このページに含まれる情報は、一般的な情報提供のみを目的としています。特に空室状況については現況が異なる場合があるため、詳細についてはお問い合わせ下さい。