平河町2-6-1
平河町2-6-1
オフィス
物件ID: JPN-P-000WID

平河町ビル

東京都千代田区平河町2-6-1

坪単価:お問い合せください

  • 募集面積:46.87 坪 / 155 m² 
  • 物件詳細
  • 物件概要
  • 所在地
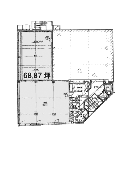
  • 平面図

物件詳細

平河町ビルは、1975年竣工の東京都千代田区にある賃貸オフィスビルです。地上9階/地下2階建て、基準階面積は110.72坪、天井高は2,330mm、OAフロアありです。最寄り駅は、東京メトロ有楽町線麹町駅から徒歩3分、東京メトロ丸ノ内線赤坂見附駅から徒歩7分、東京メトロ銀座線赤坂見附駅から徒歩7分です。

募集区画

所在地

平面図

※基準階とは、多階層ビルにおいて基準となる平面を持つ階になります。

※このページに含まれる情報は、一般的な情報提供のみを目的としています。特に空室状況については現況が異なる場合があるため、詳細についてはお問い合わせ下さい。