東大阪市新庄西貸倉庫
東大阪市新庄西貸倉庫
倉庫
物件ID: JPN-P-0047FM
IC5km以内

東大阪市新庄西貸倉庫

大阪府東大阪市

6,521 円/坪から

  • 物件詳細
  • 物件概要
  • 所在地
  • 平面図
  • お問い合わせ

物件詳細

東大阪市新庄西貸倉庫は、1992年竣工の大阪府東大阪市にある、物流施設、貸し倉庫等の賃貸物流物件です。地上2階建て、延床面積は207坪(684.3㎡)、構造はS造、耐震構造、用途地域は商業地域です。最寄り駅は、JR片町線〔学研都市線〕鴻池新田駅から徒歩17分、近鉄けいはんな線荒本駅から徒歩19分、近鉄けいはんな線長田駅から徒歩21分です。最寄りICは、近畿自動車道東大阪北ICから約1.1km、阪神13号東大阪線東大阪荒本出入口から約1.7kmです。

募集区画

所在地

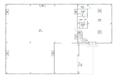
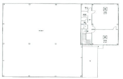
平面図

このページに含まれる情報は、一般的な情報提供のみを目的としています。特に空室状況については現況が異なる場合があるため、詳細についてはお問い合わせ下さい。

※賃貸条件や建物設備は変更する可能性があるため、ご契約内容の詳細についてはお問い合わせ下さい。