品濃町542-6
品濃町542-6
品濃町542-6
品濃町542-6
品濃町542-6
品濃町542-6
オフィス
物件ID: JPN-P-000YEH

東戸塚東口ビルディング

神奈川県横浜市戸塚区品濃町542-6

坪単価:お問い合せください

  • 募集面積:38.87 坪 / 128 m² 
  • 物件詳細
  • 物件概要
  • 所在地
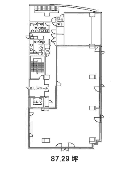
  • 平面図

物件詳細

東戸塚東口ビルディングは、1993年竣工の神奈川県横浜市戸塚区にある賃貸オフィスビルです。地上6階/地下1階建て、基準階面積は87.00坪、天井高は2,600mm、耐震構造です。最寄り駅は、JR横須賀線東戸塚駅から徒歩5分です。

募集区画

所在地

平面図

※基準階とは、多階層ビルにおいて基準となる平面を持つ階になります。

※このページに含まれる情報は、一般的な情報提供のみを目的としています。特に空室状況については現況が異なる場合があるため、詳細についてはお問い合わせ下さい。