内幸町1-2-2
内幸町1-2-2
内幸町1-2-2
オフィス
物件ID: JPN-P-000740
居抜

日比谷ダイビル

東京都千代田区内幸町1-2-2

坪単価:お問い合せください

  • 募集面積:236.56 坪 / 782 m² 
  • 物件詳細
  • 物件概要
  • 所在地
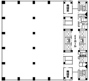
  • 平面図

物件詳細

日比谷ダイビルは、1989年竣工の東京都千代田区にある賃貸オフィスビルです。地上21階/地下3階建て、基準階面積は265.92坪、天井高は2,630mm、OAフロアあり、耐震構造です。最寄り駅は、都営三田線内幸町駅から徒歩2分、JR横須賀線新橋駅から徒歩5分、JR京浜東北線新橋駅から徒歩5分です。

募集区画

所在地

平面図

※基準階とは、多階層ビルにおいて基準となる平面を持つ階になります。

※このページに含まれる情報は、一般的な情報提供のみを目的としています。特に空室状況については現況が異なる場合があるため、詳細についてはお問い合わせ下さい。