八丁堀4-9-9
八丁堀4-9-9
オフィス
物件ID: JPN-P-000TGM
即入居可

八丁堀フロンティアビル

東京都中央区八丁堀4-9-9

15,000 円/坪から

  • 募集面積:24.46 坪 / 81 m² 
  • 物件詳細
  • 物件概要
  • 所在地
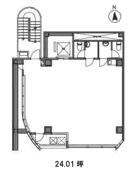
  • 平面図
  • お問い合わせ

物件詳細

八丁堀フロンティアビルは、1991年竣工の東京都中央区にある賃貸オフィスビルです。地上7階/地下1階建て、基準階面積は24.00坪、天井高は2,900mm、耐震構造です。最寄り駅は、JR京葉線八丁堀駅から徒歩1分、東京メトロ日比谷線八丁堀駅から徒歩1分、東京メトロ有楽町線新富町駅から徒歩8分です。

募集区画

所在地

平面図

※基準階とは、多階層ビルにおいて基準となる平面を持つ階になります。

※このページに含まれる情報は、一般的な情報提供のみを目的としています。特に空室状況については現況が異なる場合があるため、詳細についてはお問い合わせ下さい。