
オフィス
物件ID: JPN-P-003RHHGUILD Lab
大阪府大阪市北区大淀中1-6-13
10,000 円/坪から
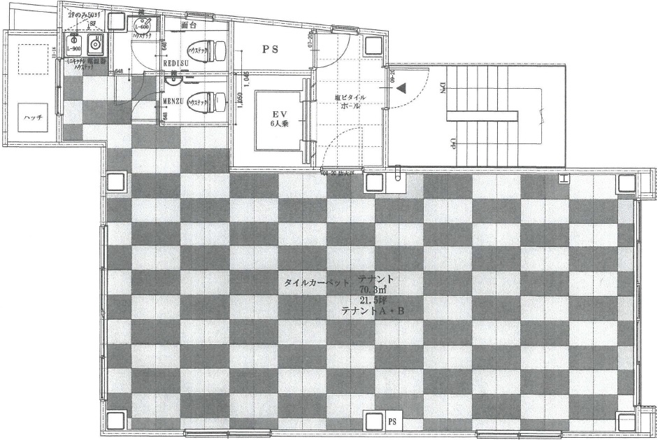
- 募集面積:21.5 坪 / 71 m²
- 物件詳細
- 物件概要
- 所在地
- 平面図
※基準階とは、多階層ビルにおいて基準となる平面を持つ階になります。
※このページに含まれる情報は、一般的な情報提供のみを目的としています。特に空室状況については現況が異なる場合があるため、詳細についてはお問い合わせ下さい。

大阪府大阪市北区大淀中1-6-13
10,000 円/坪から
※基準階とは、多階層ビルにおいて基準となる平面を持つ階になります。
※このページに含まれる情報は、一般的な情報提供のみを目的としています。特に空室状況については現況が異なる場合があるため、詳細についてはお問い合わせ下さい。