西新宿7-5-8
西新宿7-5-8
西新宿7-5-8
西新宿7-5-8
西新宿7-5-8
オフィス
物件ID: JPN-P-0006GS

GOWA西新宿

東京都新宿区西新宿7-5-8

19,000 円/坪から

  • 募集面積:41.37 坪 / 137 m² 
  • 物件詳細
  • 物件概要
  • 所在地
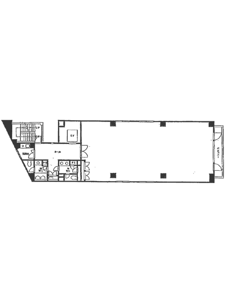
  • 平面図
  • お問い合わせ

物件詳細

GOWA西新宿は、1993年竣工の東京都新宿区にある賃貸オフィスビルです。地上10階建て、基準階面積は41.37坪、天井高は2,400mm、耐震構造です。最寄り駅は、西武新宿線西武新宿駅から徒歩4分、JR中央本線(東京-塩尻)大久保駅から徒歩5分、都営大江戸線(環状部)新宿西口駅から徒歩5分です。

募集区画

所在地

平面図

※基準階とは、多階層ビルにおいて基準となる平面を持つ階になります。

※このページに含まれる情報は、一般的な情報提供のみを目的としています。特に空室状況については現況が異なる場合があるため、詳細についてはお問い合わせ下さい。