紅葉町2-35
紅葉町2-35
オフィス
物件ID: JPN-P-001E4G

福山DSビル

広島県福山市紅葉町2-35

坪単価:お問い合せください

  • 募集面積:24.73 坪 / 82 m² 
  • 物件詳細
  • 物件概要
  • 所在地
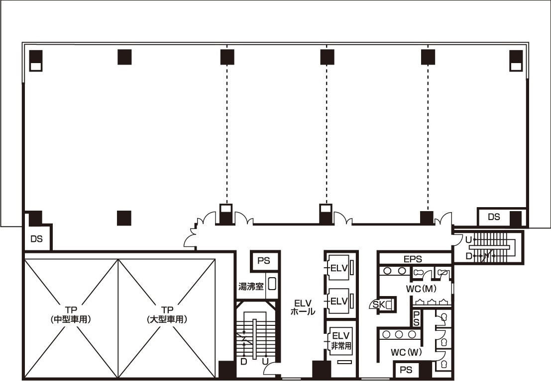
  • 平面図

物件詳細

福山DSビルは、1993年竣工の広島県福山市にある賃貸オフィスビルです。地上12階建て、基準階面積は127.55坪、天井高は2,550mm、OAフロアあり、耐震構造です。最寄り駅は、JR山陽新幹線福山駅から徒歩7分、JR山陽本線(岡山-下関)福山駅から徒歩7分、JR福塩線福山駅から徒歩7分です。

募集区画

所在地

平面図

※基準階とは、多階層ビルにおいて基準となる平面を持つ階になります。

※このページに含まれる情報は、一般的な情報提供のみを目的としています。特に空室状況については現況が異なる場合があるため、詳細についてはお問い合わせ下さい。