亀戸2-27-7
亀戸2-27-7
オフィス
物件ID: JPN-P-0008W0
居抜

FORECAST亀戸

東京都江東区亀戸2-27-7

坪単価:お問い合せください

  • 募集面積:49.59 - 122.41 坪 / 164 - 405 m² 
  • 物件詳細
  • 物件概要
  • 所在地
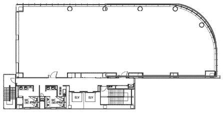
  • 平面図
  • お問い合わせ

物件詳細

FORECAST亀戸は、2010年竣工の東京都江東区にある賃貸オフィスビルです。地上8階/地下1階建て、基準階面積は122.42坪、天井高は2,700mm、OAフロアあり、耐震構造です。最寄り駅は、JR総武本線(東京-銚子)亀戸駅から徒歩4分、東武亀戸線亀戸駅から徒歩4分、東武亀戸線亀戸水神駅から徒歩11分です。

募集区画

所在地

平面図

※基準階とは、多階層ビルにおいて基準となる平面を持つ階になります。

※このページに含まれる情報は、一般的な情報提供のみを目的としています。特に空室状況については現況が異なる場合があるため、詳細についてはお問い合わせ下さい。