新橋5-10-8
新橋5-10-8
新橋5-10-8
新橋5-10-8
新橋5-10-8
新橋5-10-8
新橋5-10-8
オフィス
物件ID: JPN-P-0003WD
即入居可

FORAビル

東京都港区新橋5-10-8

16,751 円/坪から

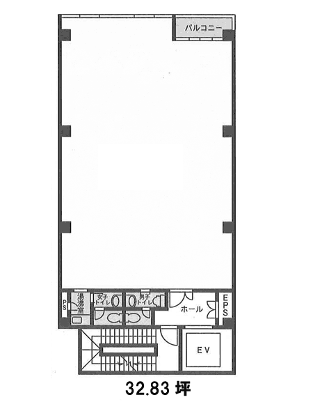
  • 募集面積:32.83 坪 / 109 m² 
  • 物件詳細
  • 物件概要
  • 所在地
  • 平面図
  • お問い合わせ

物件詳細

FORAビルは、1985年竣工の東京都港区にある賃貸オフィスビルです。地上9階建て、基準階面積は32.83坪、天井高は2,500mm、耐震構造です。最寄り駅は、JR横須賀線新橋駅から徒歩6分、JR京浜東北線新橋駅から徒歩6分、JR山手線新橋駅から徒歩6分です。

募集区画

所在地

平面図

※基準階とは、多階層ビルにおいて基準となる平面を持つ階になります。

※このページに含まれる情報は、一般的な情報提供のみを目的としています。特に空室状況については現況が異なる場合があるため、詳細についてはお問い合わせ下さい。