
オフィス
物件ID: JPN-P-001D9N即入居可
フェスタ立花北館
兵庫県尼崎市七松町1-2-1
坪単価:お問い合せください
- 募集面積:33.55 - 76.18 坪 / 111 - 252 m²
- 物件詳細
- 物件概要
- 所在地
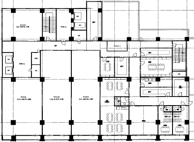
- 平面図
- お問い合わせ
※基準階とは、多階層ビルにおいて基準となる平面を持つ階になります。
※このページに含まれる情報は、一般的な情報提供のみを目的としています。特に空室状況については現況が異なる場合があるため、詳細についてはお問い合わせ下さい。

兵庫県尼崎市七松町1-2-1
坪単価:お問い合せください
※基準階とは、多階層ビルにおいて基準となる平面を持つ階になります。
※このページに含まれる情報は、一般的な情報提供のみを目的としています。特に空室状況については現況が異なる場合があるため、詳細についてはお問い合わせ下さい。