東日本橋2-22-2
東日本橋2-22-2
オフィス
物件ID: JPN-P-00058F
掲載終了物件

ES林ビル

東京都中央区東日本橋2-22-2

坪単価:お問い合せください

  • 物件詳細
  • 物件概要
  • 所在地
  • 平面図
  • お問い合わせ

物件詳細

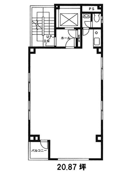
ES林ビルは、1992年竣工の東京都中央区にある賃貸オフィスビルです。地上8階建て、基準階面積は20.87坪、耐震構造です。最寄り駅は、JR総武線各停(御茶ノ水-錦糸町)浅草橋駅から徒歩1分、都営浅草線浅草橋駅から徒歩1分、JR総武本線(東京-銚子)馬喰町駅から徒歩7分です。

所在地

平面図

※基準階とは、多階層ビルにおいて基準となる平面を持つ階になります。

※このページに含まれる情報は、一般的な情報提供のみを目的としています。特に空室状況については現況が異なる場合があるため、詳細についてはお問い合わせ下さい。