DPL東雲
DPL東雲
倉庫
物件ID: JPN-P-0043PG
IC5km以内

DPL東雲

東京都江東区

坪単価:お問い合せください

  • 募集面積:5,937 坪 / 19,626 m² 
  • 物件詳細
  • 物件概要
  • 所在地
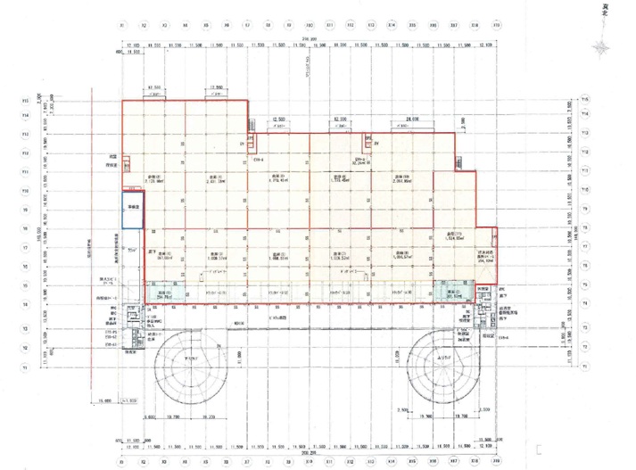
  • 平面図

物件詳細

DPL東雲は、2026年竣工の東京都江東区にある、物流施設、貸し倉庫等の賃貸物流物件です。地上6階建て、延床面積は45,117.62坪(149,149.16㎡)、構造はS+RC造、耐震構造は免震、用途地域は準工業地域です。最寄り駅は、りんかい線東雲駅から徒歩12分、東京メトロ有楽町線辰巳駅から徒歩15分、ゆりかもめ有明テニスの森駅から徒歩17分です。最寄りICは、首都10号晴海線豊洲出入口から約1.7km、首都10号晴海線晴海出入口から約3.2km、首都湾岸線有明出入口から約3.5kmです。

募集区画

所在地

平面図

このページに含まれる情報は、一般的な情報提供のみを目的としています。特に空室状況については現況が異なる場合があるため、詳細についてはお問い合わせ下さい。

※賃貸条件や建物設備は変更する可能性があるため、ご契約内容の詳細についてはお問い合わせ下さい。