神田小川町1-1-15
神田小川町1-1-15
オフィス
物件ID: JPN-P-00040C

D&F御茶ノ水ビル

東京都千代田区神田小川町1-1-15

17,000 円/坪から

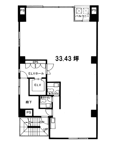
  • 募集面積:33.43 坪 / 111 m² 
  • 物件詳細
  • 物件概要
  • 所在地
  • 平面図
  • お問い合わせ

物件詳細

D&F御茶ノ水ビルは、1992年竣工の東京都千代田区にある賃貸オフィスビルです。地上9階/地下2階建て、基準階面積は36.00坪、天井高は2,400mm、耐震構造です。最寄り駅は、東京メトロ丸ノ内線淡路町駅から徒歩1分、都営新宿線小川町駅から徒歩1分、東京メトロ千代田線新御茶ノ水駅から徒歩2分です。

募集区画

所在地

平面図

※基準階とは、多階層ビルにおいて基準となる平面を持つ階になります。

※このページに含まれる情報は、一般的な情報提供のみを目的としています。特に空室状況については現況が異なる場合があるため、詳細についてはお問い合わせ下さい。