銀座1-5-15
銀座1-5-15
銀座1-5-15
オフィス
物件ID: JPN-P-0004JW

ドゥーミラン銀座ビル

東京都中央区銀座1-5-15

坪単価:お問い合せください

  • 募集面積:24.01 坪 / 79 m² 
  • 物件詳細
  • 物件概要
  • 所在地
  • 平面図
  • お問い合わせ

物件詳細

ドゥーミラン銀座ビルは、2001年竣工の東京都中央区にある賃貸オフィスビルです。地上9階/地下1階建て、基準階面積は24.07坪、天井高は2,450mm、耐震構造です。最寄り駅は、JR東海道新幹線東京駅から徒歩1分、JR横須賀線東京駅から徒歩1分、JR京浜東北線東京駅から徒歩1分です。

募集区画

所在地

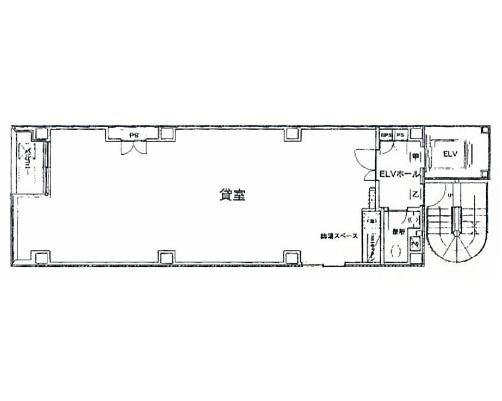
平面図

※基準階とは、多階層ビルにおいて基準となる平面を持つ階になります。

※このページに含まれる情報は、一般的な情報提供のみを目的としています。特に空室状況については現況が異なる場合があるため、詳細についてはお問い合わせ下さい。