恵比寿西1-33-14
恵比寿西1-33-14
オフィス
物件ID: JPN-P-000467
掲載終了物件

代官山SAIKANEBLDG

東京都渋谷区恵比寿西1-33-14

坪単価:お問い合せください

  • 物件詳細
  • 物件概要
  • 所在地
  • 平面図

物件詳細

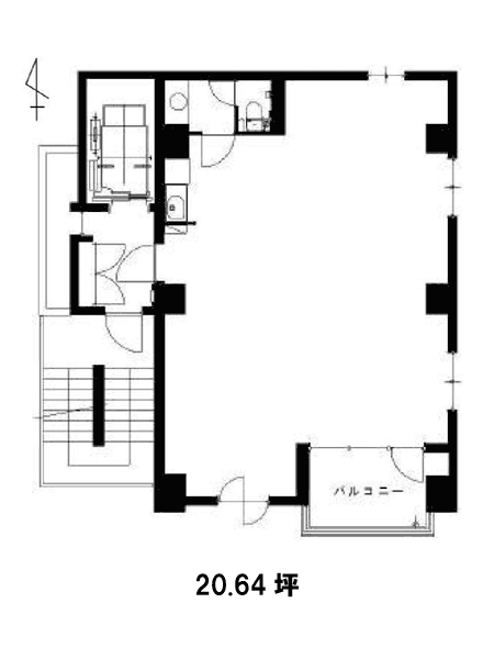
代官山SAIKANEBLDGは、1999年竣工の東京都渋谷区にある賃貸物件です。地上8階/地下1階建て、基準階面積は20.64坪です。最寄り駅は、東急東横線代官山駅から徒歩4分、東京メトロ日比谷線恵比寿駅から徒歩5分、JR埼京線恵比寿駅から徒歩8分です。

所在地

平面図

※基準階とは、多階層ビルにおいて基準となる平面を持つ階になります。

※このページに含まれる情報は、一般的な情報提供のみを目的としています。特に空室状況については現況が異なる場合があるため、詳細についてはお問い合わせ下さい。