南台3-6-17
南台3-6-17
オフィス
物件ID: JPN-P-000N5J
即入居可

クリスタルコート88

東京都中野区南台3-6-17

10,000 円/坪から

  • 募集面積:69.1 坪 / 228 m² 
  • 物件詳細
  • 物件概要
  • 所在地
  • 平面図

物件詳細

クリスタルコート88は、1988年竣工の東京都中野区にある賃貸オフィスビルです。地上6階/地下1階建て、基準階面積は180.53坪、天井高は2,850mm、OAフロアあり、耐震構造です。最寄り駅は、東京メトロ丸ノ内線(中野坂上-方南町)中野富士見町駅から徒歩3分、東京メトロ丸ノ内線(中野坂上-方南町)中野新橋駅から徒歩13分、東京メトロ丸ノ内線(中野坂上-方南町)方南町駅から徒歩14分です。

募集区画

所在地

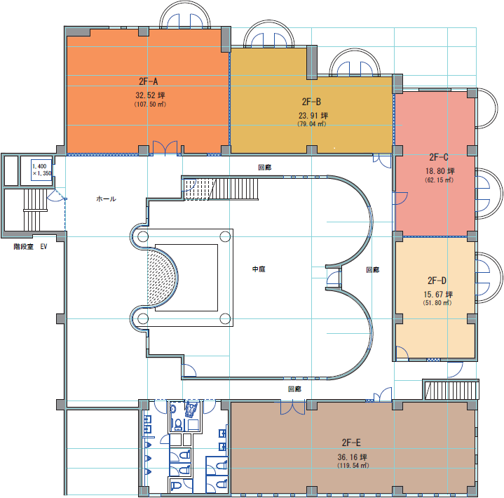
平面図

※基準階とは、多階層ビルにおいて基準となる平面を持つ階になります。

※このページに含まれる情報は、一般的な情報提供のみを目的としています。特に空室状況については現況が異なる場合があるため、詳細についてはお問い合わせ下さい。