中央町2-12
中央町2-12
中央町2-12
オフィス
物件ID: JPN-P-003MYR
即入居可

Crobis柏(クロビスカシワ)

千葉県柏市中央町2-12

18,000 円/坪から

  • 募集面積:24.82 坪 / 82 m² 
  • 物件詳細
  • 物件概要
  • 所在地
  • 平面図
  • お問い合わせ

物件詳細

Crobis柏(クロビスカシワ)は、2005年竣工の千葉県柏市にある賃貸オフィスビルです。地上6階建て、基準階面積は80.00坪、天井高は2,400mm、OAフロアあり、耐震構造です。最寄り駅は、JR常磐線柏駅から徒歩6分、東武野田線〔アーバンパークライン〕柏駅から徒歩6分です。

募集区画

所在地

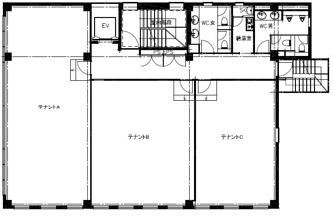
平面図

※基準階とは、多階層ビルにおいて基準となる平面を持つ階になります。

※このページに含まれる情報は、一般的な情報提供のみを目的としています。特に空室状況については現況が異なる場合があるため、詳細についてはお問い合わせ下さい。