森野1-36-2
森野1-36-2
オフィス
物件ID: JPN-P-002YRG

セレステ町田

東京都町田市森野1-36-2

坪単価:お問い合せください

  • 募集面積:26.31 坪 / 87 m² 
  • 物件詳細
  • 物件概要
  • 所在地
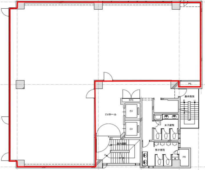
  • 平面図
  • お問い合わせ

物件詳細

セレステ町田は、1991年竣工の東京都町田市にある賃貸オフィスビルです。地上4階建て、基準階面積は110.06坪、天井高は2,800mm、耐震構造です。最寄り駅は、JR横浜線町田駅から徒歩10分、小田急小田原線町田駅から徒歩10分、小田急江ノ島線相模大野駅から徒歩29分です。

募集区画

所在地

平面図

※基準階とは、多階層ビルにおいて基準となる平面を持つ階になります。

※このページに含まれる情報は、一般的な情報提供のみを目的としています。特に空室状況については現況が異なる場合があるため、詳細についてはお問い合わせ下さい。