倉庫
物件ID: JPN-P-0039CTIC5km以内
即入居可
CBRE IM千葉北IV
千葉県千葉市稲毛区
坪単価:お問い合せください
- 募集面積:817 - 4,078.67 坪 / 2,701 - 13,483 m²
- 物件詳細
- 物件概要
- 所在地
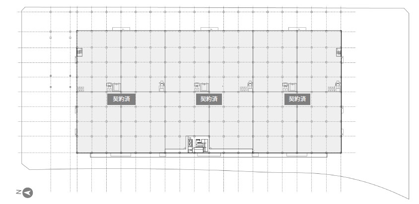
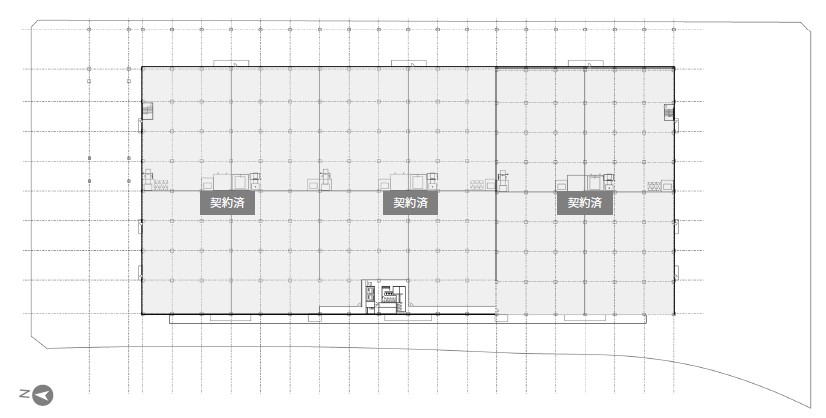
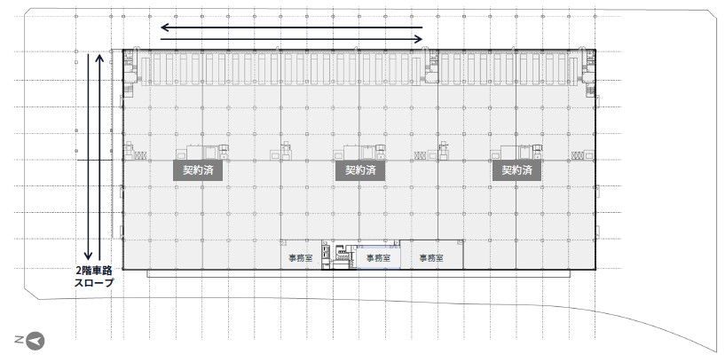
- 平面図
※このページに含まれる情報は、一般的な情報提供のみを目的としています。特に空室状況については現況が異なる場合があるため、詳細についてはお問い合わせ下さい。
※賃貸条件や建物設備は変更する可能性があるため、ご契約内容の詳細についてはお問い合わせ下さい。

