北大塚2-16-8
北大塚2-16-8
北大塚2-16-8
北大塚2-16-8
北大塚2-16-8
北大塚2-16-8
北大塚2-16-8
北大塚2-16-8
オフィス
物件ID: JPN-P-0002DL
掲載終了物件

バロックコート大塚

東京都豊島区北大塚2-16-8

坪単価:お問い合せください

  • 物件詳細
  • 物件概要
  • 所在地
  • 平面図
  • お問い合わせ

物件詳細

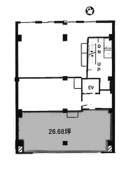
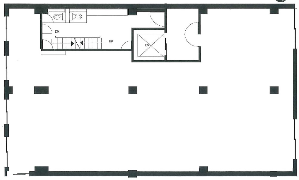
バロックコート大塚は、1962年竣工の東京都豊島区にある賃貸物件です。地上5階/地下1階建て、基準階面積は69.77坪、天井高は2,400mmです。最寄り駅は、都電荒川線巣鴨新田駅から徒歩4分、都電荒川線庚申塚駅から徒歩8分、JR山手線大塚駅から徒歩10分です。

所在地

平面図

※基準階とは、多階層ビルにおいて基準となる平面を持つ階になります。

※このページに含まれる情報は、一般的な情報提供のみを目的としています。特に空室状況については現況が異なる場合があるため、詳細についてはお問い合わせ下さい。