土手町1-38-1
土手町1-38-1
土手町1-38-1
オフィス
物件ID: JPN-P-000LOY

アソルティ大宮ル・ノード

埼玉県さいたま市大宮区土手町1-38-1

坪単価:お問い合せください

  • 募集面積:91.03 坪 / 301 m² 
  • 物件詳細
  • 物件概要
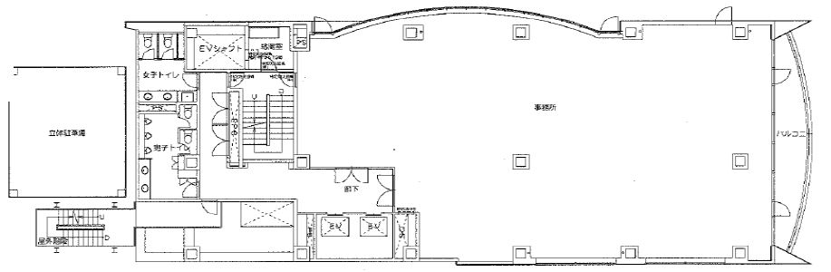
  • 所在地
  • 平面図

物件詳細

アソルティ大宮ル・ノードは、1992年竣工の埼玉県さいたま市大宮区にある賃貸オフィスビルです。地上10階建て、基準階面積は91.03坪、天井高は2,530mm、OAフロアあり、耐震構造です。最寄り駅は、東武野田線〔アーバンパークライン〕北大宮駅から徒歩5分、JR京浜東北線大宮駅から徒歩13分、JR高崎線大宮駅から徒歩13分です。

募集区画

所在地

平面図

※基準階とは、多階層ビルにおいて基準となる平面を持つ階になります。

※このページに含まれる情報は、一般的な情報提供のみを目的としています。特に空室状況については現況が異なる場合があるため、詳細についてはお問い合わせ下さい。