4条通8-1703-59
4条通8-1703-59
4条通8-1703-59
4条通8-1703-59
オフィス
物件ID: JPN-P-00BIFX
即入居可

LC1号館ビル

北海道旭川市4条通8-1703-59

6,500 円/坪から

  • 募集面積:20.62 坪 / 68 m² 
  • 物件詳細
  • 物件概要
  • 所在地
  • 平面図
  • お問い合わせ

物件詳細

LC1号館ビルは、1992年竣工の北海道旭川市にある賃貸オフィスビルです。地上8階建て、基準階面積は33.75坪、OAフロアあり、耐震構造です。最寄り駅は、JR宗谷本線旭川駅から徒歩9分、JR函館本線(小樽-旭川)旭川駅から徒歩9分、JR富良野線旭川駅から徒歩9分です。

所在地

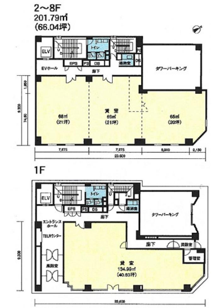
平面図

※基準階とは、多階層ビルにおいて基準となる平面を持つ階になります。

※このページに含まれる情報は、一般的な情報提供のみを目的としています。特に空室状況については現況が異なる場合があるため、詳細についてはお問い合わせ下さい。