虎ノ門3-7-14
虎ノ門3-7-14
オフィス
物件ID: JPN-P-0001HW

AMビル(虎ノ門)

東京都港区虎ノ門3-7-14

坪単価:お問い合せください

  • 募集面積:51.8 坪 / 171 m² 
  • 物件詳細
  • 物件概要
  • 所在地
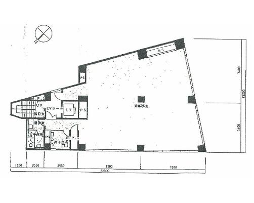
  • 平面図

物件詳細

AMビル(虎ノ門)は、1985年竣工の東京都港区にある賃貸オフィスビルです。地上5階/地下1階建て、基準階面積は51.80坪、天井高は2,500mmです。最寄り駅は、東京メトロ銀座線溜池山王駅から徒歩6分、東京メトロ南北線溜池山王駅から徒歩6分、東京メトロ日比谷線神谷町駅から徒歩7分です。

募集区画

所在地

平面図

※基準階とは、多階層ビルにおいて基準となる平面を持つ階になります。

※このページに含まれる情報は、一般的な情報提供のみを目的としています。特に空室状況については現況が異なる場合があるため、詳細についてはお問い合わせ下さい。