大森北2-17-2
大森北2-17-2
オフィス
物件ID: JPN-P-000LFP
掲載終了物件

αNEXT大森海岸

東京都大田区大森北2-17-2

坪単価:お問い合せください

  • 物件詳細
  • 物件概要
  • 所在地
  • 平面図

物件詳細

αNEXT大森海岸は、1988年竣工の東京都大田区にある賃貸物件です。地上9階建て、基準階面積は22.00坪です。最寄り駅は、JR京浜東北線大森駅から徒歩4分、京急本線大森海岸駅から徒歩9分、京急本線立会川駅から徒歩17分です。

所在地

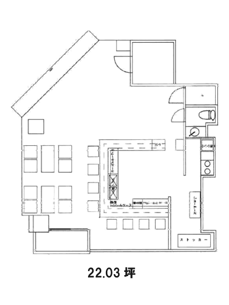
平面図

※基準階とは、多階層ビルにおいて基準となる平面を持つ階になります。

※このページに含まれる情報は、一般的な情報提供のみを目的としています。特に空室状況については現況が異なる場合があるため、詳細についてはお問い合わせ下さい。