西五軒町6-10
西五軒町6-10
オフィス
物件ID: JPN-P-0010VO

秋山ビル

東京都新宿区西五軒町6-10

11,946 円/坪から

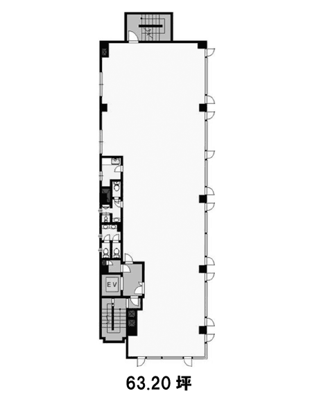
  • 募集面積:63.2 坪 / 209 m² 
  • 物件詳細
  • 物件概要
  • 所在地
  • 平面図
  • お問い合わせ

物件詳細

秋山ビルは、1991年竣工の東京都新宿区にある賃貸オフィスビルです。地上5階建て、基準階面積は63.00坪、耐震構造です。最寄り駅は、東京メトロ有楽町線江戸川橋駅から徒歩4分、東京メトロ丸ノ内線茗荷谷駅から徒歩13分、東京メトロ東西線神楽坂駅から徒歩13分です。

募集区画

所在地

平面図

※基準階とは、多階層ビルにおいて基準となる平面を持つ階になります。

※このページに含まれる情報は、一般的な情報提供のみを目的としています。特に空室状況については現況が異なる場合があるため、詳細についてはお問い合わせ下さい。