神田三崎町1-4-8
神田三崎町1-4-8
オフィス
物件ID: JPN-P-000WRU
掲載終了物件

愛光舎ビル

東京都千代田区神田三崎町1-4-8

坪単価:お問い合せください

  • 物件詳細
  • 物件概要
  • 所在地
  • 平面図

物件詳細

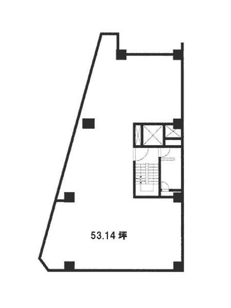
愛光舎ビルは、1973年竣工の東京都千代田区にある賃貸オフィスビルです。地上10階/地下1階建て、基準階面積は53.14坪、天井高は2,300mmです。最寄り駅は、JR中央本線(東京-塩尻)水道橋駅から徒歩2分、都営三田線水道橋駅から徒歩3分、東京メトロ半蔵門線神保町駅から徒歩7分です。

所在地

平面図

※基準階とは、多階層ビルにおいて基準となる平面を持つ階になります。

※このページに含まれる情報は、一般的な情報提供のみを目的としています。特に空室状況については現況が異なる場合があるため、詳細についてはお問い合わせ下さい。