神田錦町3-19-4
神田錦町3-19-4
神田錦町3-19-4
神田錦町3-19-4
神田錦町3-19-4
神田錦町3-19-4
神田錦町3-19-4
オフィス
物件ID: JPN-P-0010RG
居抜
即入居可

ACN神田錦町ビル

東京都千代田区神田錦町3-19-4

坪単価:お問い合せください

  • 募集面積:22.86 坪 / 76 m² 
  • 物件詳細
  • 物件概要
  • 所在地
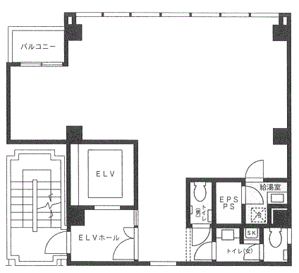
  • 平面図

物件詳細

ACN神田錦町ビルは、2009年竣工の東京都千代田区にある賃貸オフィスビルです。地上10階建て、基準階面積は22.86坪、天井高は2,550mm、OAフロアあり、耐震構造です。最寄り駅は、東京メトロ東西線竹橋駅から徒歩4分、都営三田線神保町駅から徒歩5分、都営新宿線神保町駅から徒歩5分です。

募集区画

所在地

平面図

※基準階とは、多階層ビルにおいて基準となる平面を持つ階になります。

※このページに含まれる情報は、一般的な情報提供のみを目的としています。特に空室状況については現況が異なる場合があるため、詳細についてはお問い合わせ下さい。