日本橋茅場町2-3-6
日本橋茅場町2-3-6
日本橋茅場町2-3-6
オフィス
物件ID: JPN-P-000HDD
掲載終了物件

茅場町偕成ビル

東京都中央区日本橋茅場町2-3-6

坪単価:お問い合せください

  • 物件詳細
  • 物件概要
  • 所在地
  • 平面図
  • お問い合わせ

物件詳細

茅場町偕成ビルは、2009年竣工の東京都中央区にある賃貸オフィスビルです。地上9階建て、基準階面積は69.56坪、天井高は2,600mm、耐震構造です。最寄り駅は、東京メトロ日比谷線茅場町駅から徒歩3分、東京メトロ東西線茅場町駅から徒歩4分、東京メトロ日比谷線八丁堀駅から徒歩6分です。

所在地

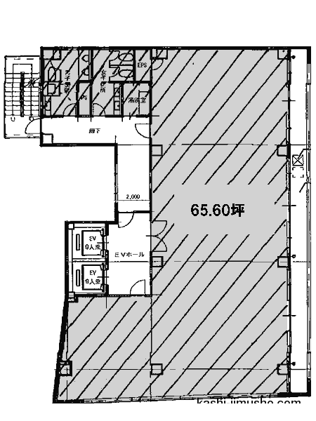
平面図

※基準階とは、多階層ビルにおいて基準となる平面を持つ階になります。

※このページに含まれる情報は、一般的な情報提供のみを目的としています。特に空室状況については現況が異なる場合があるため、詳細についてはお問い合わせ下さい。